SIP Mobilne Kamp Kućice

Rješenja za kampove i turizam - vrhunska kvaliteta, brza montaža i energetska učinkovitost

Podignite ljestvicu udobnosti vaših gostiju

SIP mobilne kućice za kampove

  • Vrhunska toplinska izolacija za maksimalnu energetsku učinkovitost
  • Brza montaža - postavke u tjednima umjesto mjeseci
  • Izdržljiva konstrukcija otporna na vremenske neprilike
  • Fleksibilni dizajn prilagodljiv različitim potrebama
  • Ekološki prihvatljiva gradnja s održivim materijalima
  • Moderni dizajn koji privlači goste
  • Privatnost i komfor za nezaboravno iskustvo

Cijena već od 1.000€/m² + PDV

Fleksibilnost dizajna za sve potrebe

Naše SIP mobilne kamp kućice omogućavaju potpunu fleksibilnost u planiranju prostora, što ih čini idealnim rješenjem za različite vrste kamping objekata.

Studio apartment floor plan

Studio apartman

Površina: 18m²
Energetski razred: A
Sobe: Studio prostorija s kupatilom
Vrijeme gradnje: 2-3 tjedna
One bedroom floor plan

Jednosobni apartman

Površina: 24m²
Energetski razred: A
Sobe: 1 spavaća soba + dnevni boravak
Vrijeme gradnje: 3-4 tjedna
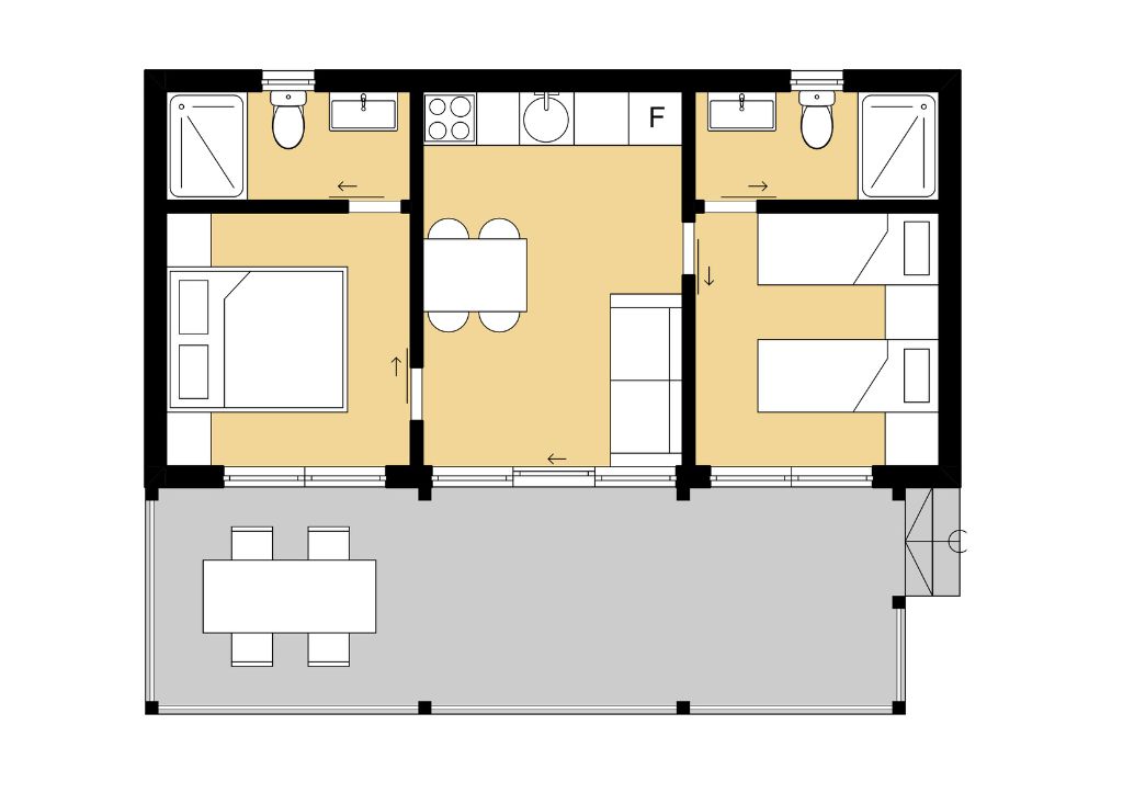
Two bedroom floor plan

Dvosobni apartman

Površina: 30 - 40m²
Energetski razred: A
Sobe: 2 spavaće sobe + dnevni boravak
Vrijeme gradnje: 4-5 tjedana